Penthouse mit Kamin, Dachterrasse & Aufzug bis in die Wohnung

14193 Berlin, Penthousewohnung zur Miete

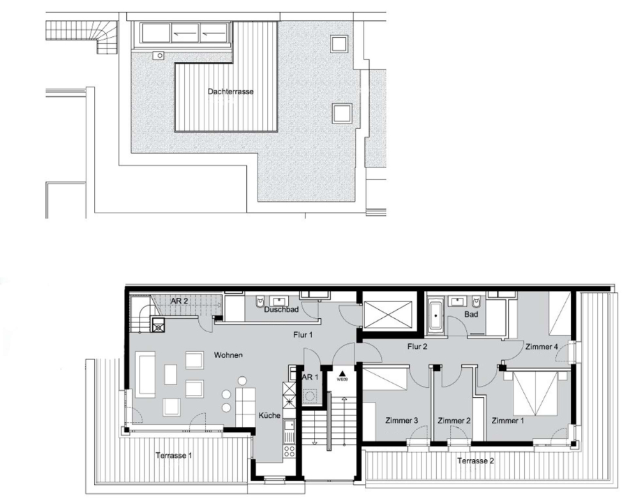
Objekt­beschreibung

Beschreibung

In einer ruhigen Seitenstraße in Schmargendorf wurde im Jahr 2019 ein kleines Mehrfamilienhaus mit 9 Wohneinheiten auf dem Innenhof errichtet.
Der Neubau vereint praktische Schnitte und helle Räume mit hohem Wohnkomfort.

Ausstattung

Die Wohnung hat folgende Ausstattungsmerkmale:

  • Aufzug bis in die Wohnung
  • Eichenparkett mit Fußbodenheizung
  • bodentiefe Fenster
  • helles Wohnzimmer mit Kamin und anliegendem Balkon
  • offene Küche mit moderner und vollausgestatteter Einbauküche
  • modernes Bad mit Wanne und Dusche
  • zusätzliches Bad mit Dusche
  • vier Schlafzimmer mit Zugang zum Balkon
  • eine Dachterrasse
  • zwei Abstellräume

Sonstiges

Es handelt sich um einen Staffelmietvertrag. Die Mindestmietdauer beträgt 2 Jahre.

Kontaktdaten

Objektdaten

  • Objekttypen
    Penthousewohnung, Wohnung
  • Adresse
    Caspar-Theyß-Straße 24A
    14193 Berlin
    (Grunewald (Wilmersdorf))
  • Etage
    4
  • Etagen im Haus
    4
  • Wohnfläche ca.
    144,73 m²
  • Zimmer
    5
  • Schlafzimmer
    4
  • Badezimmer
    2
  • Küche
    Einbauküche
  • Heizungsart
    Fußbodenheizung
  • Baujahr
    2019
  • Zustand
    neuwertig
  • Haustiere
    nach Vereinbarung
  • Verfügbar ab
    Nach Vereinbarung
  • Kaution
    3 Nettokaltmieten
  • Kaltmiete
    3.574,83 EUR
  • Nebenkosten
    486,00 EUR
  • Heizkosten
    162,00 EUR (nicht in den Nebenkosten enthalten)
  • Warmmiete
    4.222,83 EUR

Ausstattung / Merkmale

  • ✓ Balkon/Terrasse
  • ✓ Einbauküche
  • ✓ Gäste-WC
  • ✓ Keller
  • ✓ Personenaufzug
  • ✓ WG-geeignet

Energieausweis

  • Energieausweistyp
    Bedarfs­ausweis
  • Ausstellungsdatum
    nach dem 1.5.2014
  • Baujahr lt. Energieausweis
    2019
  • Primärenergieträger
    Pellet
  • Endenergie­bedarf
    98,90 kWh/(m²·a)
  • Energie­effizienz­klasse
    C
0 25 50 75 100 125 150 175 200 225 250+ H G F E D C B A A+ H G F E D C B A A+ Endenergiebedarf 98,90 kWh/(m²·a)

Lage

Hier wohnen Sie zentral, ruhig und bürgerlich mit einer guten Verkehrsanbindung sowohl an die Stadtautobahn A 100 als auch mit Bussen und der S-Bahn an den öffentlichen Nahverkehr.

Naherholungsmöglichkeiten, wie die Seen der kleinen Grunewaldseenkette und der Grunewald selbst laden zum Entspannen ein.
Selbstverständlich sind auch genügend Einkaufsmöglichkeiten, Bars und Restaurants vorhanden, so dass Sie die Nachbarschaft grundsätzlich nie verlassen müssten.

Direktanfrage

* Pflichtangaben
 SSL-verschlüsselt
DSGVO Cookie Consent mit Real Cookie Banner